Hledáte své první bydlení nebo investiční byt nedaleko centra města Brna?
Exkluzivně vám nabízíme zajímavý byt 1+1 v osobním vlastnictví, umístěný ve zvýšeném suterénu cihlového bytového domu s okny do zahrady vnitrobloku, na klidné ulici Dunajevského, v Brně – Žabovřeskách.
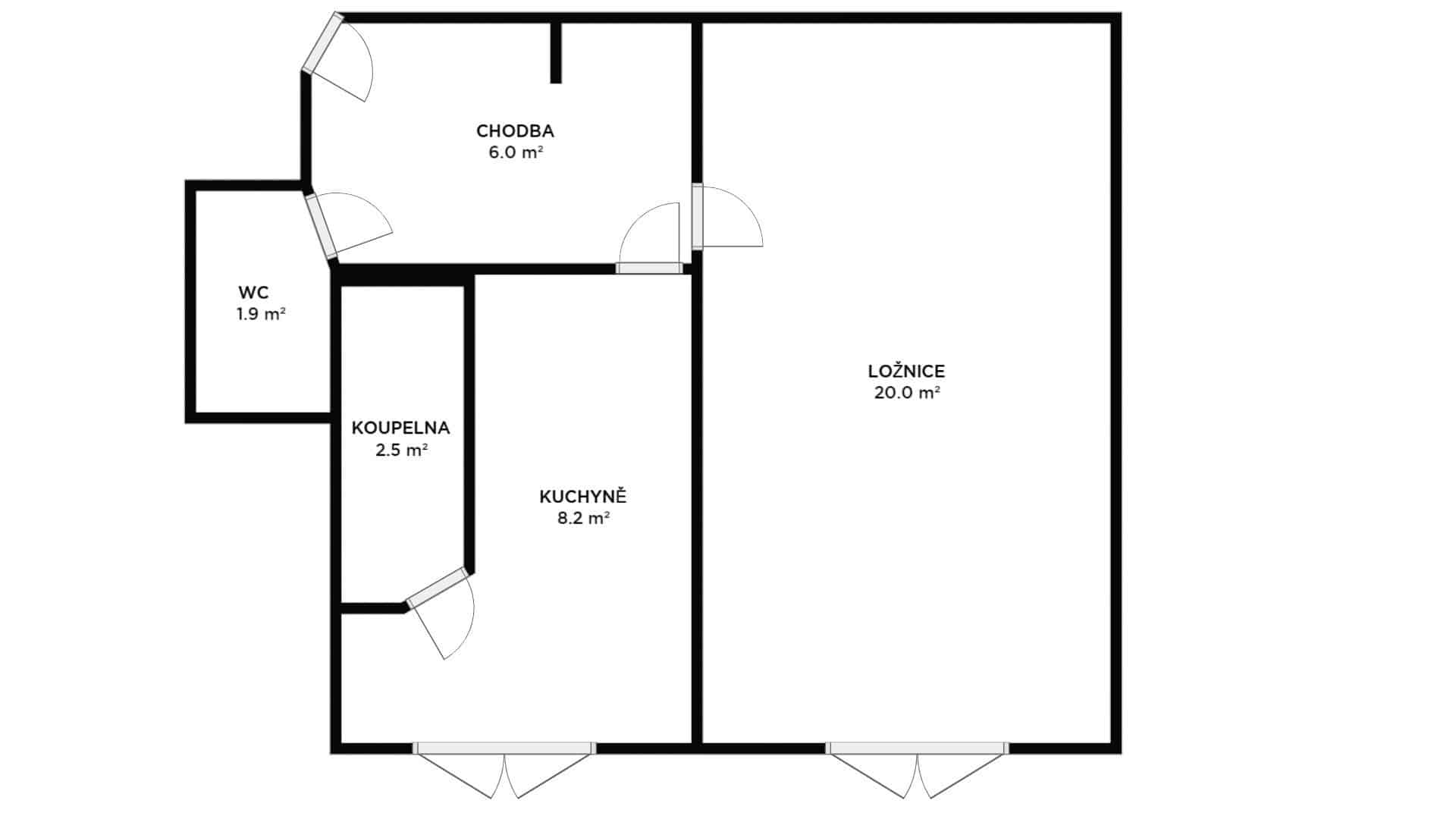
Byt o celkové ploše 39 m2 prošel v roce 2021 velmi zdařilou rekonstrukcí včetně nové kuchyně, zděné koupelny a toalety, položením světlé dřevěné podlahy, vestavěnými úložnými prostory, výměnou zárubní a dveří, nové rozvody elektřiny, plynu, vody a odpadu.
Při rekonstrukci bylo dbáno především na důkladně promyšlenou kompozici a praktičnost, aby omezená plocha vedla k maximálnímu využití prostoru, čímž vznikl zajímavý byt, kde díky orientaci na západní stranu a výhledu do zeleně zahrady ve vnitrobloku, celý den svítí slunce.
Velkým benefitem je možnost využívaní relaxační zóny společné zahrady umístěné v těsné blízkosti bytu.
Dispozičně je byt tvořen obývacím pokojem 20 m2 se samostatným vchodem a zabudovaným pracovním koutem včetně úložných prostor, s dostatkem místa i pro lůžko či sedačku a dřevěnou podlahou.
Malou, ale útulnou kuchyni 8 m2 rozsvítí žlutá kuchyňská linka s plynovým sporákem a digestoří s možností podlahového vytápění i nepostradatelné potravinové skříně.
Koupelna v nadčasovém trendu je vybavena sprchovým koutem a umyvadlem, toaleta je samostatná s prostorem na pračku.
Měsíční náklady tvoří zálohy za teplo, vodu, fond oprav, internet, TV v částce 4 800,-Kč a 1 845,-Kč elektřina, plyn.
Součástí prodeje je i prostorný sklep nyní využíván jako fotokomora.
K bytu náleží i podíl na společných částech domu a pozemku a lze využívat zahradu ve vnitrobloku domu.
Městská část Žabovřesky s velmi dobrou dostupností do centra města, nabízí veškerou občanskou vybavenost – školky, školu, obchody, úřady, lékáře i nedalekou MHD.
Tento byt lze doporučit jako startovací bydlení pro studenty, tak pro starší generaci kvůli umístění s malým počtem schodů i pro investici k možným pronájmům.
Pokud vas nabízený byt zaujal a máte zájem o prohlídku, zavolejte mi.
























