Hledáte-li dům, který si přizpůsobíte přesně podle svých představ?
Nabízíme Vám jedinečnou příležitost získat prostorný patrový dům 4+kk s garáží a zahradou 273 m2 v klidné části Drnovic u Vyškova.
Původní dům s užitnou plochou 180 m2 je vhodný ke kompletní rekonstrukci a vytvoření moderního a energeticky úsporného bydlení.
Můžete si vytvořit bydlení které bude odpovídat vašim současným potřebám a požadavkům.
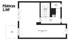
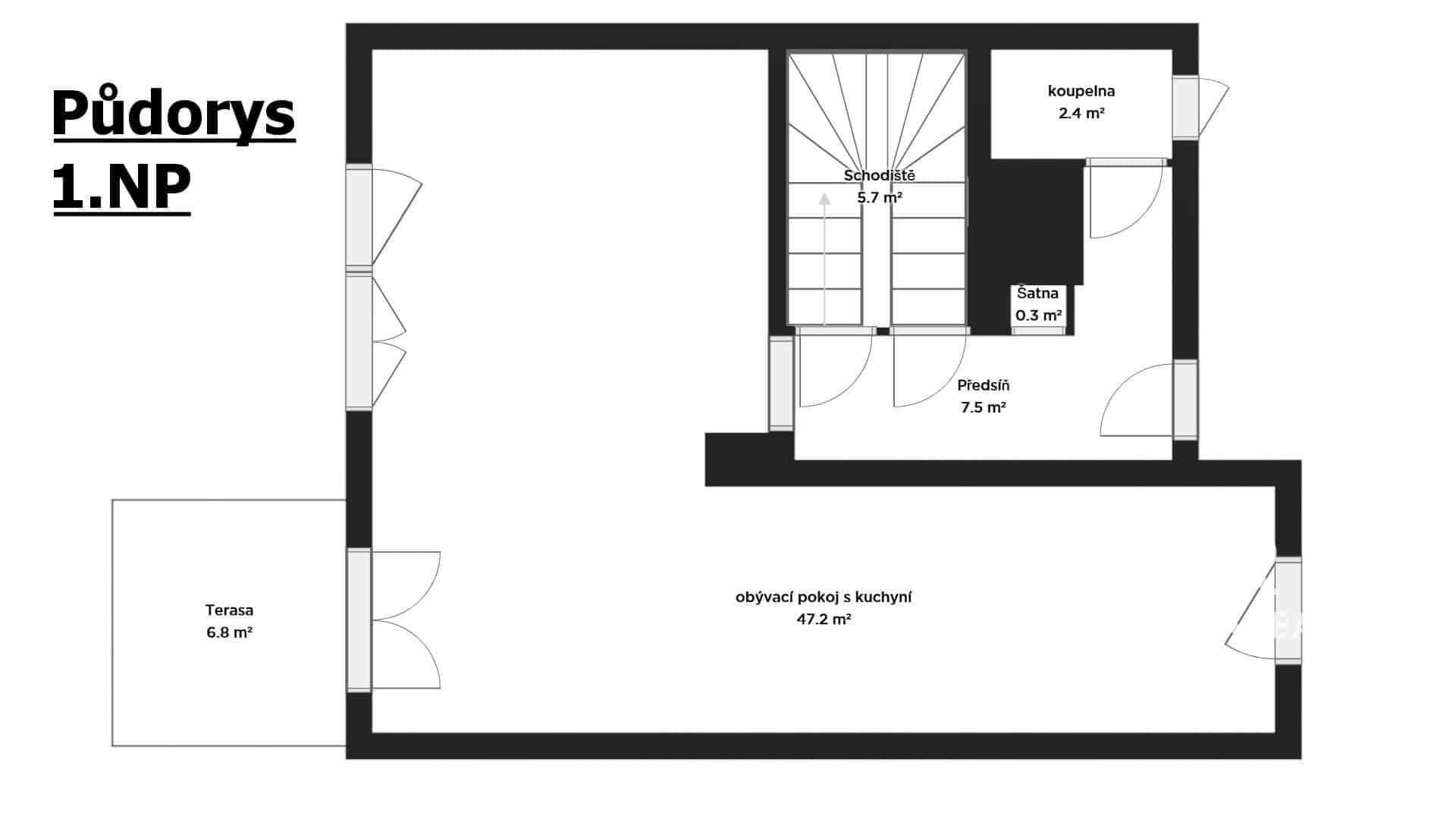
V přízemí domu najdeme otevřený koncept kuchyně a obývacího pokoje 47 m2 s přímým vstupem na terasu zahrady s jižní orientací.
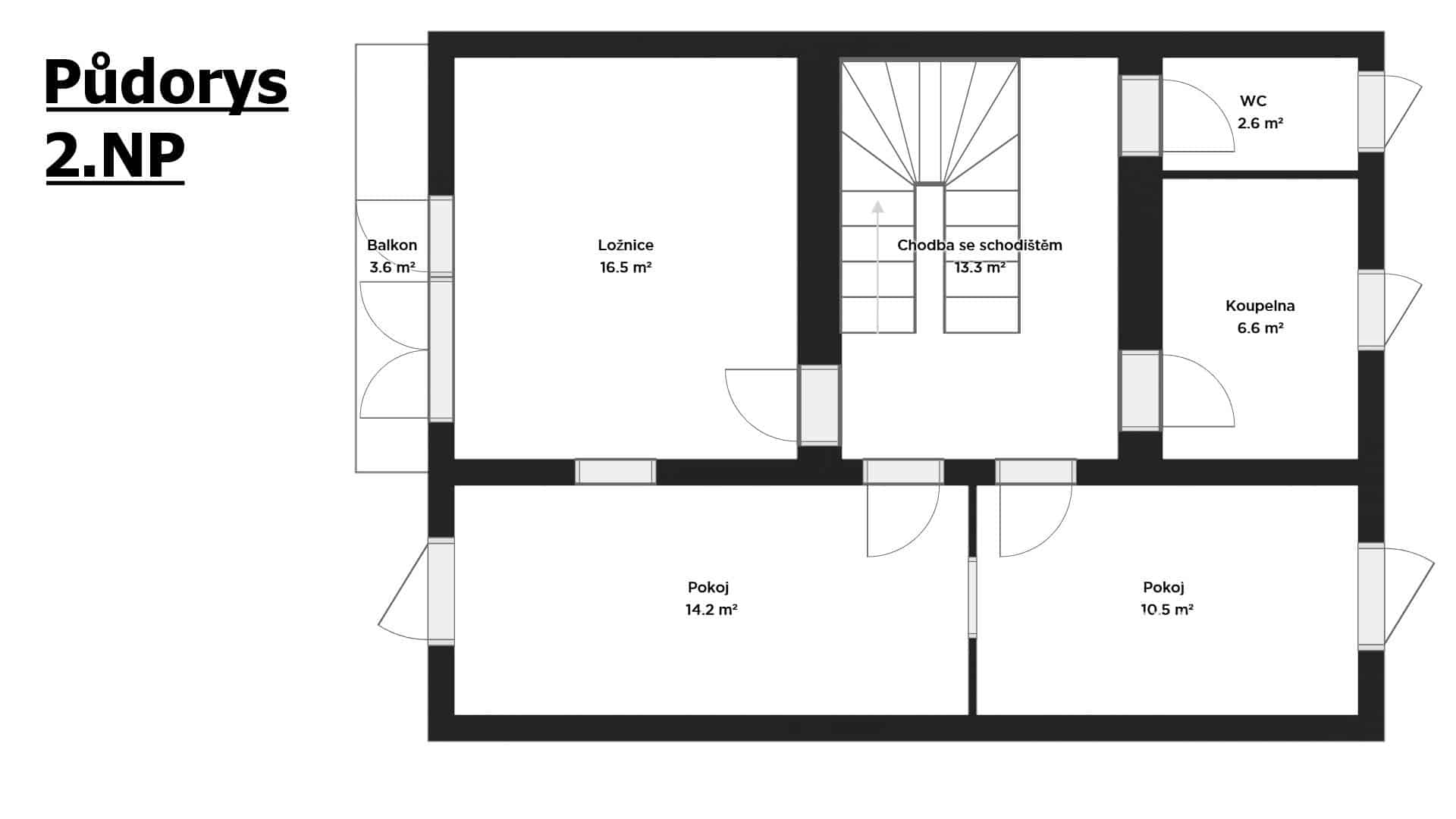
Na patře potom tři samostatné pokoje 16 m2 , 14 m2 a 10 m2 s koupelnou a toaletou.
Celý dům je podsklepený takže členité podzemní prostory nabízí multifunkční využití , včetně garáže.
Díky další zděné garáži 28 m2 s podkrovním úložným prostorem, umístěné v zahradě , zaparkujete v pohodlí domova více aut.
Můžete začít s rekonstrukcí ihned, dům je volný.
Pro inspiraci nabízíme ve fotogalerii vizualizaci, jak může váš dům vypadat.
V malebné obci Drnovice najdeme vše potřebné mateřskou školku, základní školu, obecní úřad, obchod i poštu a do nedalekého Vyškova je to jen 4 km a za 40 min po dálnici v Brně.
Prohlídka Vám umožní si udělat představu o možnostech tohoto domu, tak neváhejte a zavolejte.






























