Hledáte prostorný dům pro velkou rodinu nebo výnosovou investici?
Exkluzivně Vám nabízíme prodej cihlového vícegeneračního domu se zahradou v klidné části Brno – Bosonohy na ulici Hoštická.
Patrový dům nabízí tři samostatné bytové jednotky, což umožňuje flexibilní využití – pro velkou rodinu, nebo jako výnosovou investici.
Dům je ideální pro generace žijící pod jednou střechou, ale zároveň nabízí možnost samostatného bydlení či investice do budoucnosti, pro svůj obrovský potenciál přestavby.
Každá bytová jednotka o ploše cca 100 m2 má vlastní koupelnu s WC a balkonem.
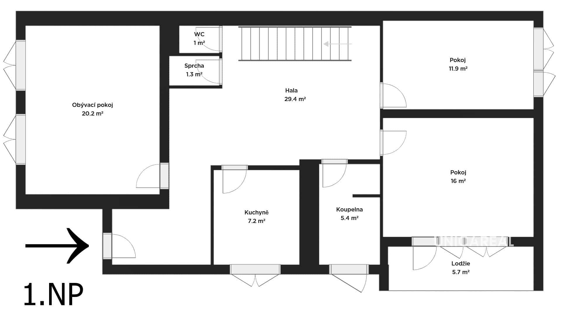
V přízemí se nachází pohodlný byt 3+1 s kuchyní a koupelnou, ideální pro prarodiče nebo hosty i jako zdroj pasivního příjmu.
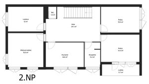
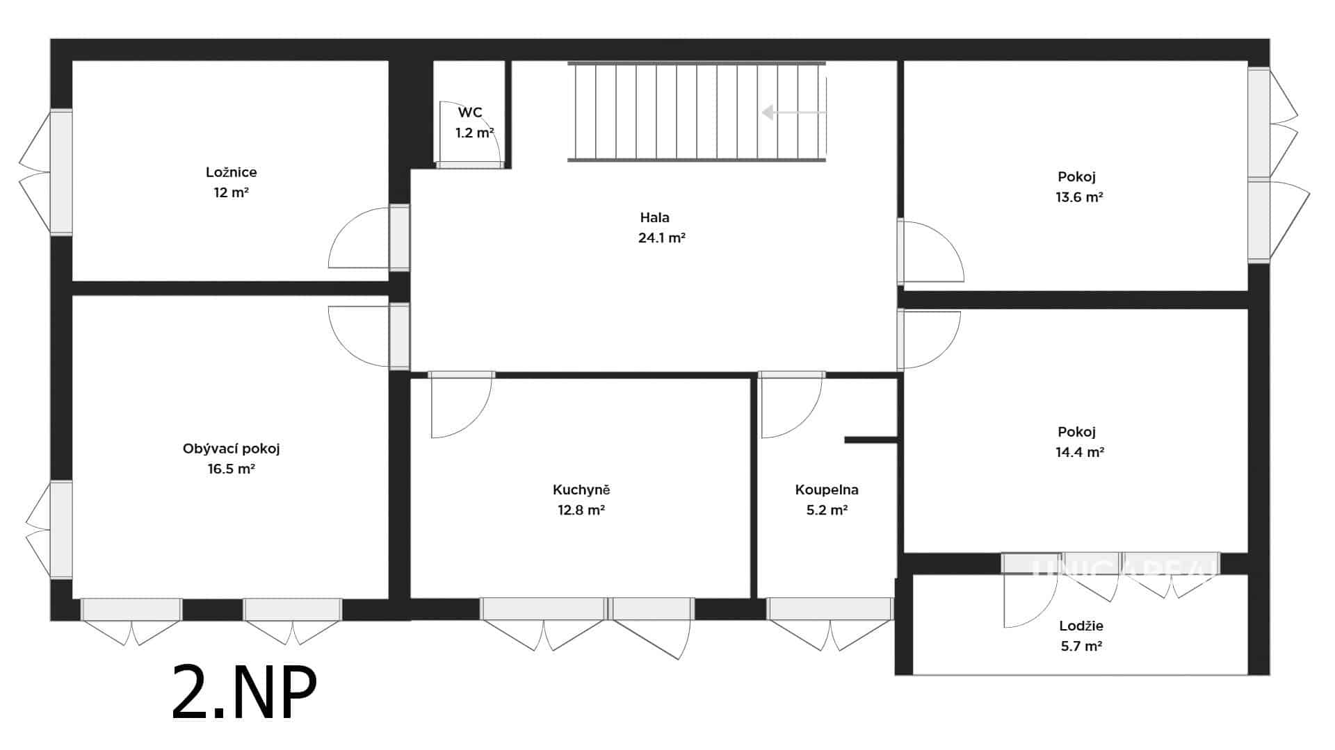
V patře naleznete velkorysý byt 4+1 s koupelnou, který nabízí dostatek prostoru pro soukromí každého člena rodiny.
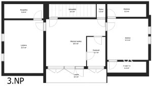
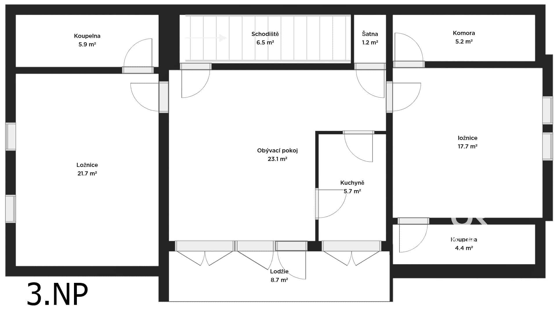
Podkrovní byt 3+1 s jedinečným dispozičním řešením. Ke každé ložnici náleží samostatná koupelna s toaletou, což zajišťuje maximální komfort bydlení.
Nepostradatelná šatna vám poskytne potřebný úložný prostor. Vychutnejte si ranní kávu na balkóně s východní orientací.
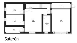
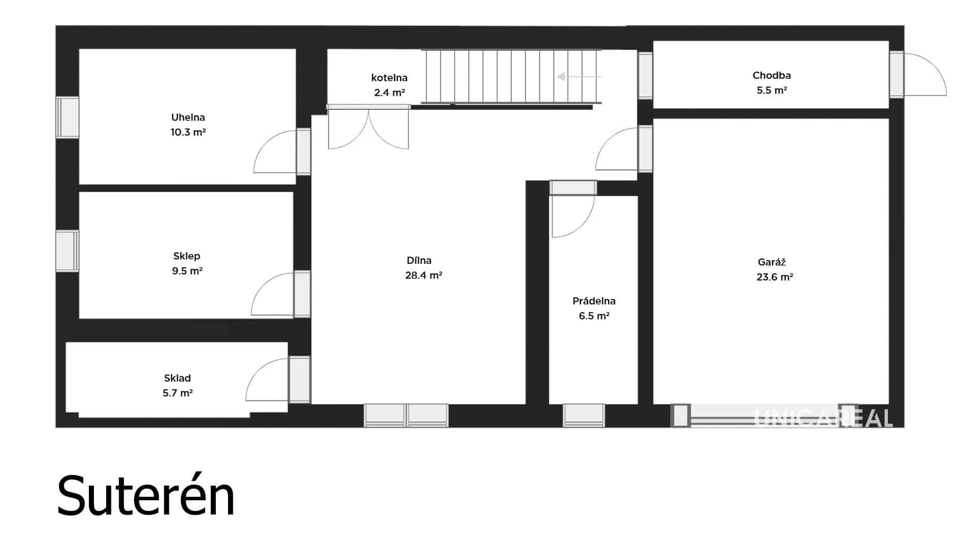
V suterénu najdete garáž, prádelnu, dílnu i umístěný plynový kotel pro pohodlné vytápění.
Zahrada s vlastní studnou obklopena ovocnými stromy a keři vytváří příjemné venkovní prostředí.
Dům je připraven k okamžitému využití, ale nabízí také prostor pro vlastní úpravy a modernizace.
Klidná lokalita nabízí únik od městského ruchu a zároveň dobrou dostupnost do centra Brna.
Brno-Bosonohy je městská část na jihozápadě statutárního města Brna s veškerou občanskou vybaveností jako mateřská školka, základní škola, střední škola, městský úřad, obchod Brněnka, sportovně-relaxační lesní zóna i praktický lékař.
Neváhejte a kontaktujte nás pro více informací.






























