Ve výhradním zastoupení majitele si vám dovolujeme nabídnout k prodeji světlý, jihozápadně orientovaný byt o dispozici 2+1 v revitalizovaném panelovém domě, na ulici Provazníkova, v brněnské městské části Černá Pole.
– kompletní revitalizace domu
– kompletní rekonstrukce bytu
– rezervované parkoviště před domem i ve vnitrobloku pouze pro předmětný dům se čtyřmi vchody
(V případě zájmu podáme bližší informace)
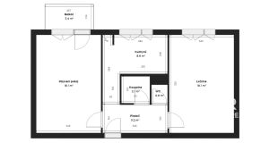
– ideální dispozice bytu
– 4 zastávky MHD do centra Brna
Byt situovaný ve 3. N.P. bez výtahu, má celkovou užitnou plochou 54m2 + balkon 3,5m2 + sklep 1,6m2. Výhodou bytu je jeho ideální dispozice. Dva stejně velké pokoje o velikosti 18,1m2 jsou samostatné a každý na opačné straně bytu. Díky tomuto dispozičnímu uspořádání pokojů je byt vhodný nejen pro komfortní bydlení, ale i jako investice na pronájmy.
Byt prošel kompletní a nákladnou rekonstrukcí, včetně zděného jádra a nové elektroinstalace. Byt je částečně zařízen viz. fotografie v inzerci (kromě označených vizualizací 2 pokojů). Pro vaši lepší představu o dispozici je součástí inzerce půdorys i vizualizace.
Dům prošel kompletní revitalizací jejichž součástí byly tyto opravy: zateplení, fasáda, plastová okna, balkony, vchodové dveře, zvonky, schránky, výměna stupaček, oprava střechy a oprava chodeb.
Přímo v místě je veškerá občanská vybavenost a dostupnost do centra je výborná. V těsné blízkosti domu jsou vysoké školy, což je výhoda v případě investičního záměru. U domu je park ve vnitrobloku, kde je hřiště, zeleň a prostor pro relaxaci.
Dům má třídu energetické náročnosti C – úsporná. Na bytě neváznou žádné právní závazky a je ihned volný. Prohlídky které určitě doporučujeme jsou možné po domluvě.





















