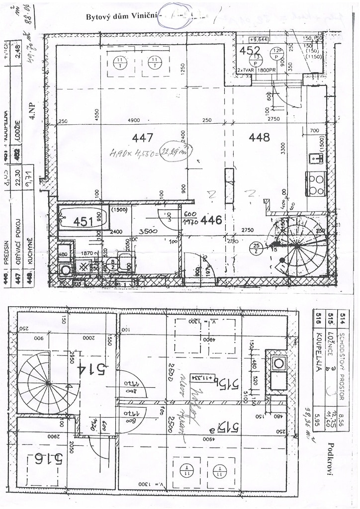
Naše společnost si dovoluje nabídnout družstevní/OV mezonetový byt 3+kk s lodžií v cihlovém domě v klidné městské části Brno-Židenice na ulici Viniční s výhledem do zeleně. K bytu je možnost přikoupit garážové stání přímo v domě. Byt o celkové ploše včetně příslušenství 90 m2 se nachází ve 3. patře domu bez výtahu s orientací na jihozápad.
Dispozice bytu je velmi dobře vyřešena: z prostorné předsíně (8 m2) se vchází vlevo do koupelny (7 m2) s vanou, bidetem a WC, dále pak proti vchodovým dveřím do obývacího pokoje s kuchyní (32 m2) a vstupem do lodžie s výhledem do zeleně. Byt je mezonetový, tzn. že po schodech z předsíně se vyjde do horní části bytu, kde se nachází dva pokoje (12 m2 a 11,6 m2), koupelna se sprchovým koutem a WC (6 m2), schodišťový prostor se zábradlím v horní části bytu je prostorný o velikosti 8,5 m2.
Vytápění bytu a ohřev vody je řešen samostatným plynovým kotlem. Podlahy jsou v pokojích kryty koberci, v koupelnách je dlažba, okna jsou plastová i dřevěná se žaluziemi, zárubně dveří obložkové.
Náklady na byt jsou 1 700 Kč (správa, fond oprav, úklid, osvětlení v domě), elektřina cca 800 Kč a plyn cca 2000 Kč. V domě je možné využívat společnou kočárkárnu a sušárnu.
Vzhledem k tomu, že se v bytě nacházejí dvě koupelny, je možnost jej dále využívat k podnikání. Je to velmi výhodná investice. Byt jde převést do osobního vlastnictví v roce 2020. Nyní na něj nelze čerpat hypotéku (Wustenrot nabízí 1 milion Kč bez zástavy). Další možnost financování této nemovitosti je finančními prostředky v hotovosti nebo zastavením jiné nemovitosti.
Byt se nachází na klidném místě, přitom téměř ve středu města, nedaleko nákupního střediska a dopravního uzlu Stará osada. Doporučujeme prohlídku.




























