– Jedna z nejžádanějších lokalit v Brně
– Dům po kompletní revitalizaci i s bezbariérovým vstupem
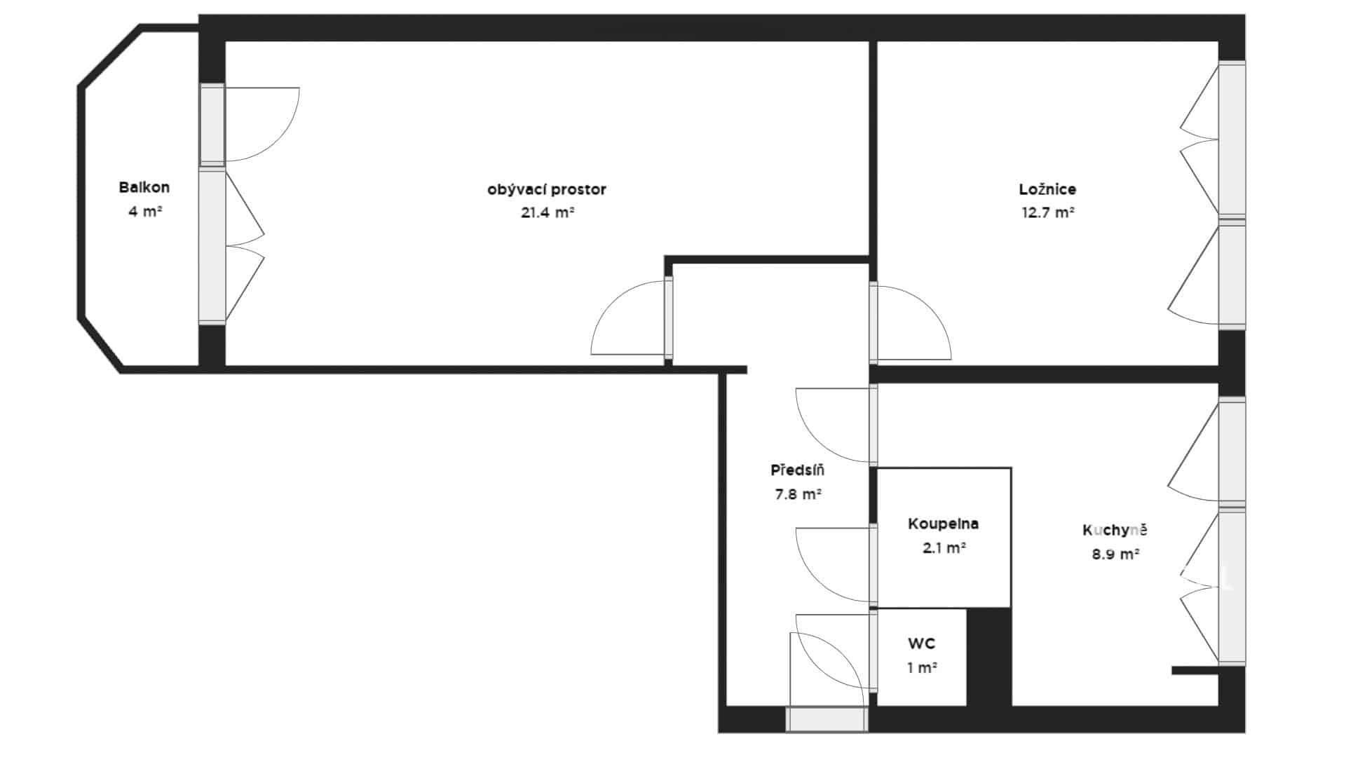
– Výborná dispozice bytu s neprůchozími pokoji
– Vyšší patro s jižním výhledem až na Pálavu
Ve výhradním zastoupení majitele si vám dovolujeme nabídnout k prodeji dispozičně zdařilý byt OV 2+1 s balkonem, nacházející v lesnaté a do centra výborně dostupné lokalitě Lesná, na klidné ulici Arbesova.
Byt je situovaný v 6.n.p. s výtahem, v kompletně revitalizovaném panelovém domě a má celkovou
plochu 54m2 + balkon 4m2 + sklep 1,6m2.
Z bytu byl na náklady majitele odstraněn starý nábytek a byl vymalován na bílo. Je určen ke kompletní rekonstrukci a je možné se tak realizovat na finálním vzhledu svého bydlení.
Byt je dispozičně dobře řešen. Všechny místnosti mají samostatné vstupy. V obývacím pokoji je atypická “spací” nika, kterou lze jednoduše předělat i na velkou šatnu. V předsíni je úložný prostor v nice vhodný pro zbudování vestavěné skříně. Součástí fotografií v prezentaci je i půdorys bytu.
Z jihozápadně orientovaného balkonu je pěkný výhled na jih a při dobrém počasí je vidět až na Pálavu. Ložnice i kuchyň je orientovaná do zeleně.
Kompletní náklady na bydlení jsou ve výši 4.195,-Kč + elektřina a plyn. Budova má třídu energetické náročnosti C- úsporná.
V těsné blízkosti domu na ul. Halasovo nám. je dopravní uzel s výbornou dostupností MHD do centra Brna a zde se nachází i veškerá občanská vybavenost. Lokalita Lesná je oblíbená i pro svou polohu v blízkosti lesů a lesoparků. Přímo u domu se nachází pěkný lesopark, který je určen ke sportu i pro relax.
Vzhledem ke své výborné poloze i dispozici je byt ideální nejen pro komfortní bydlení, ale i jako vhodná investice na pronájmy.
Na bytě neváznou žádné právní závazky a je ihned volný. Prohlídky které určitě doporučujeme jsou možné po domluvě.




















