Ve výhradním zastoupení majitele nabízíme prodej domu vhodného k rekreaci 2+1+ vejminek s možností dalšího rozšíření obytného prostoru, a to vše v obci Chvalkovice, ležící nedaleko Bučovic.
Konstrukce domu je smíšená. Dům jehož původní část byla postavena před cca 100 lety má stěny o tloušťce 90cm. Tato skutečnost zaručuje možnost dostavby patra, a tím rozšíření obytného prostoru.
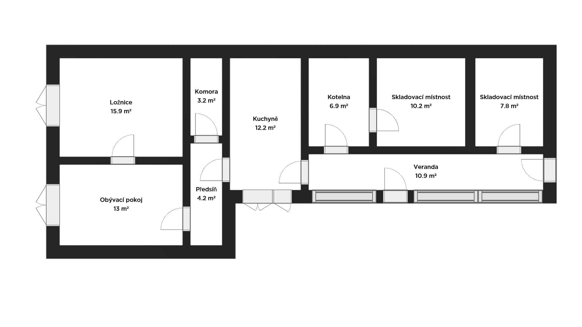
Dům je připojen na plyn a elektřinu. Voda se v současné době využívá ze studny a odpad jde do jímky. Topení je plynové. Obecní voda i kanalizace jsou připraveny před domem. Dům je v dobrém stavu, ihned obyvatelný , disponuje dvěma pokoji a kuchyní, praktickou spíží. Okna do ulice jsou plastová.
Průjezdem u domu je umožněn vjezd do dvora.
V dostavěném dvorním traktu je další obyvatelná místnost – vejminek, dílna (technická místnost) a dále koupelna se sprchou a toaletou.
Na uzavřeném dvoře je klidné posezení v soukromí, k dispozici i funkční udírna.
Zastřešeným mlatem projdeme do rozlehlé zahrady s ovocnými stromy.
Zastavěná plocha činí 476m² ( + vedlejší stavby ) na parcele o celkové rozloze 1423m².
Velký pozemek poskytuje dostatek prostoru pro různé možnosti využití. Tato nemovitost je vhodná k modernizaci pro pohodlné rodinné bydlení, nebo jako investice k možné přestavbě na ubytování – penzion.
Jedná se o velmi pěknou lokalitu v sousedství krásné přírody, litenčické pahorkatiny s hlavním vrcholem Hradisko, která je protkaná turistickými stezkami.
Pokud máte zájem o prohlídku této nemovitosti, neváhejte nás kontaktovat. Rádi Vám poskytneme více informací a domluvíme si termín prohlídky.





























