Chcete bydlet v novostavbě, nejlépe ihned a přitom mít možnost si detaily domu dodělat přesně podle svých představ? A to vše na klidném místě s minimálním provozem a nádherným okolím? Pak je následující nabídka právě pro Vás.
Nabízíme k prodeji novostavbu bungalovu 4+kk v Náměšti nad Oslavou v lokalitě Nad Splavem.
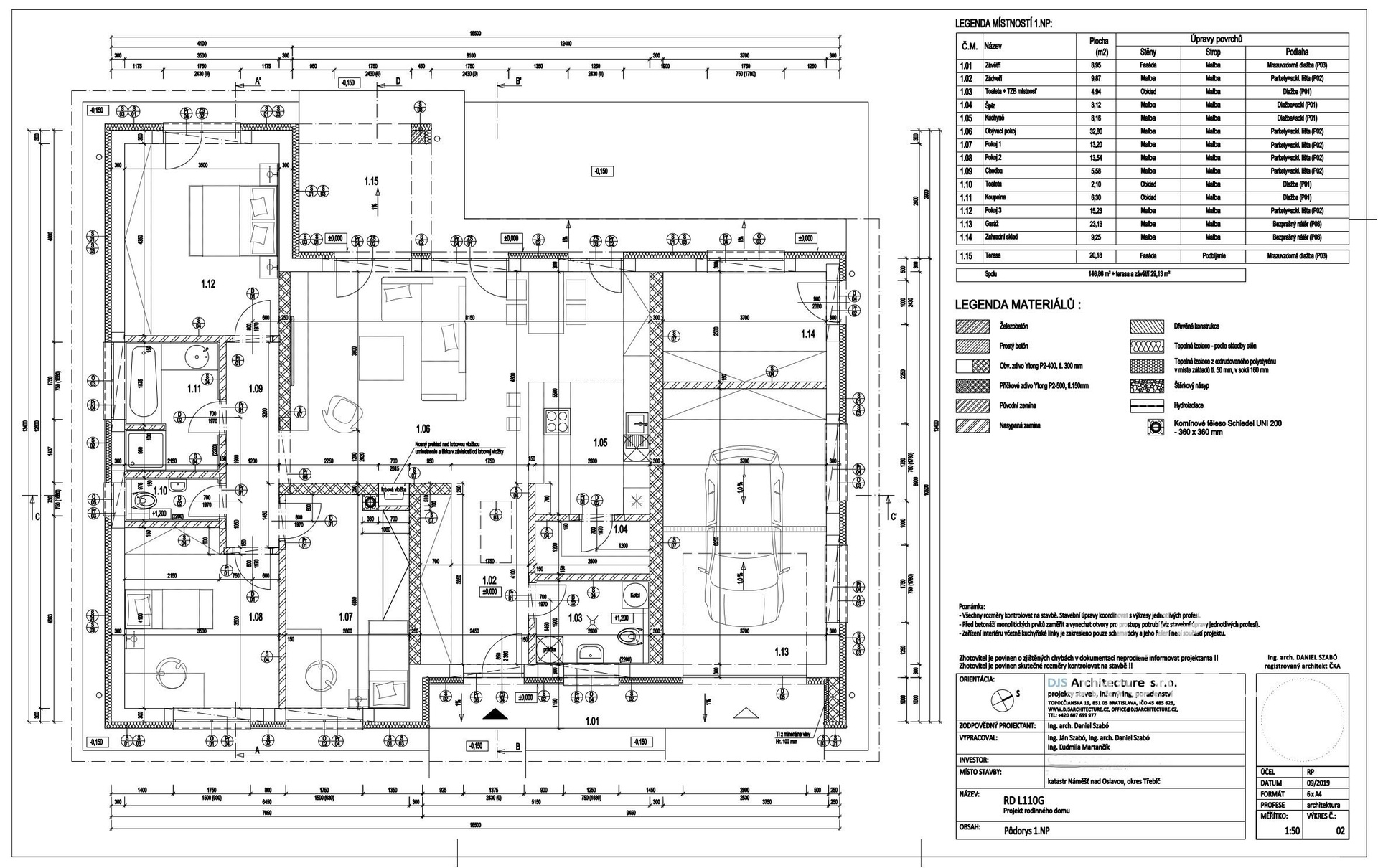
Rodinný dům je jednopodlažní, nepodsklepený, samostatně stojící objekt se šikmou, valbovou střechou.
Zastavěná plocha je 185,25 m², užitná 146,85 m², obytná 83,1 m².
Jedná se o budovu s téměř nulovou spotřebou energie.
Denní část domu tvoří vstup a kuchyň spojená s obývacím pokojem. Z obývacího pokoje je přístupná terasa, překrytá střechou. Noční část domu tvoří ložnice, dva pokoje, samostatná toaleta a velká koupelna.
Rodinný dům je doplněn o prostornou garáž se zahradním skladem, které mají samostatný vstup.
Základy rodinného domu tvoří rošt se základových pásů z prostého betonu. Obvodové stěny jsou zděné z tvárnic Ytong 300mm, vnitřní příčky pak z tvárnic Ytong 150mm.
Vytápění domu je podlahové, na elektrokotel, v obývacím pokoji se pak o intimní náladu a přitopení v chladných dnech postará krb. Kuchyňskému koutu dominuje 5,5 metru dlouhá kuchyňská linka.
Z ložnice a obývacího pokoje jsou přímé vstupy na zahradu.
Odvod splaškové vody je do městské veřejné kanalizace, s odvodem dešťové vody počítá projekt do vsakovací jímky na pozemku. Objekt je napojen na veřejný vodovod a plyn.
Dům je částečně vybaven (vestavěné skříně, elektrospotřebiče v kuchyni, velká sedačka…).
Garáž v současné době má zazděná vjezdová vrata a slouží jako sklad materiálu se vstupem zevnitř objektu.
Pozemek je rovinatý a částečně oplocený.
Dispozice:
Obývací pokoj s kuchyní 41,1m²
Pokoj 13,2m²
Pokoj 13,6 m²
Ložnice 15,2 m²
Koupelna 6,2 m²
WC 2,1 m²
Chodba 5,6 m²
Předsíň 9,9 m²
Komora 3,1 m²
Technická místnost 5 m²
Zádveří 9,1 m²
Garáž 23,2 m²
Terasa 20,5 m²
Skladovací místnost 9,3 m²
Stavební povolení bylo vydáno v roce 2020 a ve stejný rok byla zahájena stavba.
Ke kolaudaci je nutné nechat provést všechny revize (kotel, elektřina, přípojka plynu, tlakové zkoušky vodovodního a kanalizačního potrubí…) a rozvody dešťové kanalizace. K celkovému dokončení ještě chybí venkovní terénní úpravy, fasáda domu a drobné nedodělky, nicméně dům je již nyní obyvatelný.
Dům se nachází v okrajové části města, poblíž přehrady Vicenický žleb, která slouží hlavně rybářům a na procházky místním občanům. V opačném směru se nabízí nádherný pohled na státní zámek a část města.
Náměšť nad Oslavou je město v okrese Třebíč v kraji Vysočina, 20 km východně od Třebíče a 40km západně od Brna na řece Oslavě. Nadmořská výška města je 365 metrů nad mořem. Město je obcí s rozšířenou působností. Žije zde zhruba 5 tisíc obyvatel. Historické jádro je městskou památkovou zónou. Dominantou města je renesanční zámek.






























