Chcete mít Brno na dlani, kochat se krásnými jihozápadními výhledy a užívat si skutečně exkluzivního bydlení na dobré adrese? Nebo hledáte investiční nemovitost na pronájmy s možností až 3 bytových jednotek? Potom pro vás máme zajímavou nabídku.
Ve výhradním zastoupení majitele si vám dovolujeme nabídnout k prodeji čtyřpodlažní řadový dům, který katastrálně spadá do lokality Husovice, ale samotnou polohou určitě pod Černá Pole. Dům s garáží, dvěma jihozápadně orientovanými lodžiemi, terasou a zahradou se nachází na kopci, ve velmi klidné a jednosměrné ulici Lozíbky.
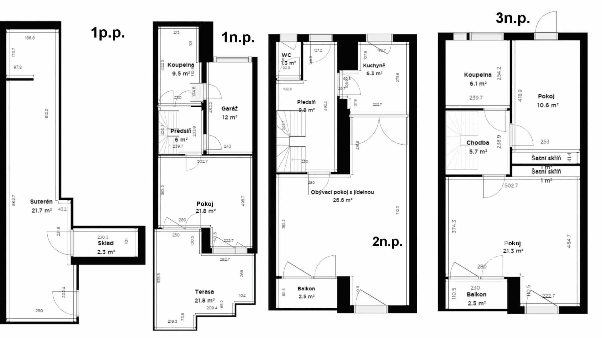
Dům postavený v roce 1967 má velmi pozitivní atmosféru a funkcionalistické prvky v interiéru vyzdvihují specifickou dispozici a řešení domu. Interiér domu i včetně nábytku navrhoval známý architekt, autor jednoho z pavilonů brněnského výstaviště. Interiéru vévodí točité schodiště z masivního dřeva. Vše je v detailech řešeno tak, aby se do domu dostalo co nejvíce světla. V každém patře je lodžie, nebo terasa ze které můžete pozorovat krásy denního i nočního Brna. V domě je výborně řešen úložný prostor v podobě zabudovaných skříní v nikách a celé suterénní patro je využíváno jako technické zázemí. Na podlahách jsou velmi zachovalé stylové parkety. Krom pohodlného bydlení dům nabízí díky své dispozici a technickému řešení i možnost úpravy na 3 menší bytové jednotky 1+1, nebo 2+kk k pronájmu, tedy k případné investici. Pro vaši lepší představu přikládáme k fotografiím i půdorysy všech čtyř podlaží.
Veškerý zachovalý stylový nábytek charakteristický pro 70. léta a dále spotřebiče na fotografiích mohou být součástí kupní ceny. V opačném případě bude dům vyklizen.
Základní technické parametry:
Užitná plocha: 163m2
Zastavěná plocha a nádvoří: 85
Plocha zahrady: 151m2
Plocha terasy a balkonů: 27m2
Celková plocha pozemku: 236m2
Dům je vytápěn kombinovaným plynovým kotlem, který slouží i k ohřevu vody.
Jedná se o velmi atraktivní místo na severu Brna, v blízkosti parků, lesoparků a krásné přírody. Zároveň je však dům situován ve velmi dobré dostupnosti do centra Brna. Přímo v místě je veškerá občanská vybavenost.
Štítek energetické náročnosti PENB zatím nebyl dodán, proto je v inzerci uvedena třída G.
Na domě neváznou žádné právní závazky a je ihned volný. Prohlídka, kterou určitě doporučujeme je možná po domluvě.



























