Hledáte nemovitost v krásné přírodě, která je vhodná i pro dvougenerační bydlení? V tom případě pro vás máme zajímavou nabídku.
Ve výhradním zastoupení majitele si vám dovolujeme nabídnout k prodeji samostatně stojící RD s další přístavbou, který se nachází v malebné obci Dalečín, ve východním okraji Českomoravské vrchoviny. Jedná se o dvoupodlažní cihlový dům, který je kompletně podsklepen. Dům leží na velkém pozemku, obklopeném lesy.
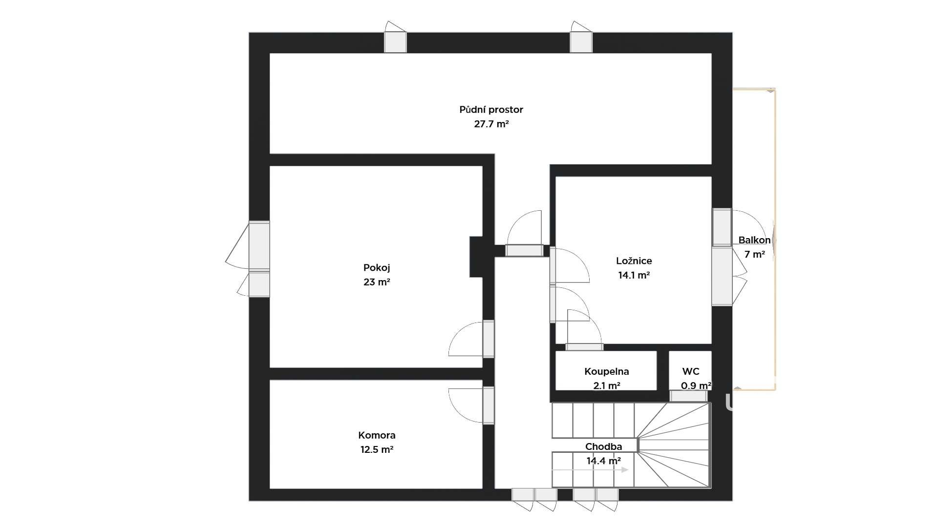
Dům:
Dům lze využít po úpravách i jako dvougenerační. Dům je kompletně podsklepen a částečně nadúrovňový, tudíž lze minimálně 2 místnosti využít k bydlení, nebo alespoň jako dílnu. Střecha a krovy jsou v dobrém stavu a jsou zde instalována plastová okna. Interiér vyžaduje modernizaci. Vzhledem ke své specifické dispozici a prostorům jsou zde široké možnosti využití a realizace vašich představ. Ve 2. NP je balkon o rozměru 7m2 orientovaný do zahrady. Výhodou je určitě i druhá stavba na pozemku, která je v současnosti využívaná částečně jako horní garáž. Dům má dispozici 5+kk, ale lze rozšířit o místnosti ve 2.NP i v suterénu domu. Díky výbornému umístění domu v obci jsou zde z oken pěkné výhledy na všechny světové strany. Pro lepší představu o dispozici a rozměrech interiéru, jsou součástí prezentace v inzerci i půdorysy a vizualizace.
Užitná plocha: 151m2
Plocha půdních prostor, které jsou v úrovni pokojů, lze využít jako další obytné místnosti 2.NP : 40m2
Sklep: 75,4m2
balkon ve 2. NP: 7m2
Pozemek:
Pozemek o rozměru 1173m2 leží ve svahu a proto jsou zde krásné výhledy do krajiny. Na pozemku se nachází hlavní budova, přístavba a spodní garáž. K přístavbě, kde je horní garáž, se vjíždí horní bránou po nezpevněné cestě. Pro lepší představu o situaci pozemku jsou přiloženy v prezentaci fotografie z dronu.
Okolí a poloha:
Dalečín je vyhledávaným rekreačním místem, pro svou nádhernou přírodu, sportovní a relaxační vyžití. Přímo v obci je sjezdovka. V okolí se nachází turistické a běžkařské trasy. Bystřice nad Pernštejnem je vzdálená 10km. V těsné blízkosti je Vírská přehrada.
Celkový dojem:
Je pro vás příroda a čerstvý vzduch až na prvním místě? Hledáte klid a odpočinek od většího města? Dům je pochopitelně vhodný pro svou ideální polohu nejen k bydlení, ale i jako rekreační objekt. Dům nabízí spoustu možností k realizaci vašich snů.
Dům je ihned volný a prohlídky, které určitě doporučujeme, jsou možné po domluvě.



























