Ve výhradním zastoupení majitele, Vám nabízíme zprostředkování prodeje rodinného domu, který se nachází v obci Moravský Žižkov.
Moravský Žižkov je obcí v okrese Břeclav v Jihomoravském kraji, přibližně 9km severně od Břeclavi a 46km jihovýchodně od Brna. Leží v oblasti Hanáckého Slovácka, mezi městem Velké Bílovice a obcí Prušánky. Obec je obklopena malebnými vinicemi a sady ovocných stromů.
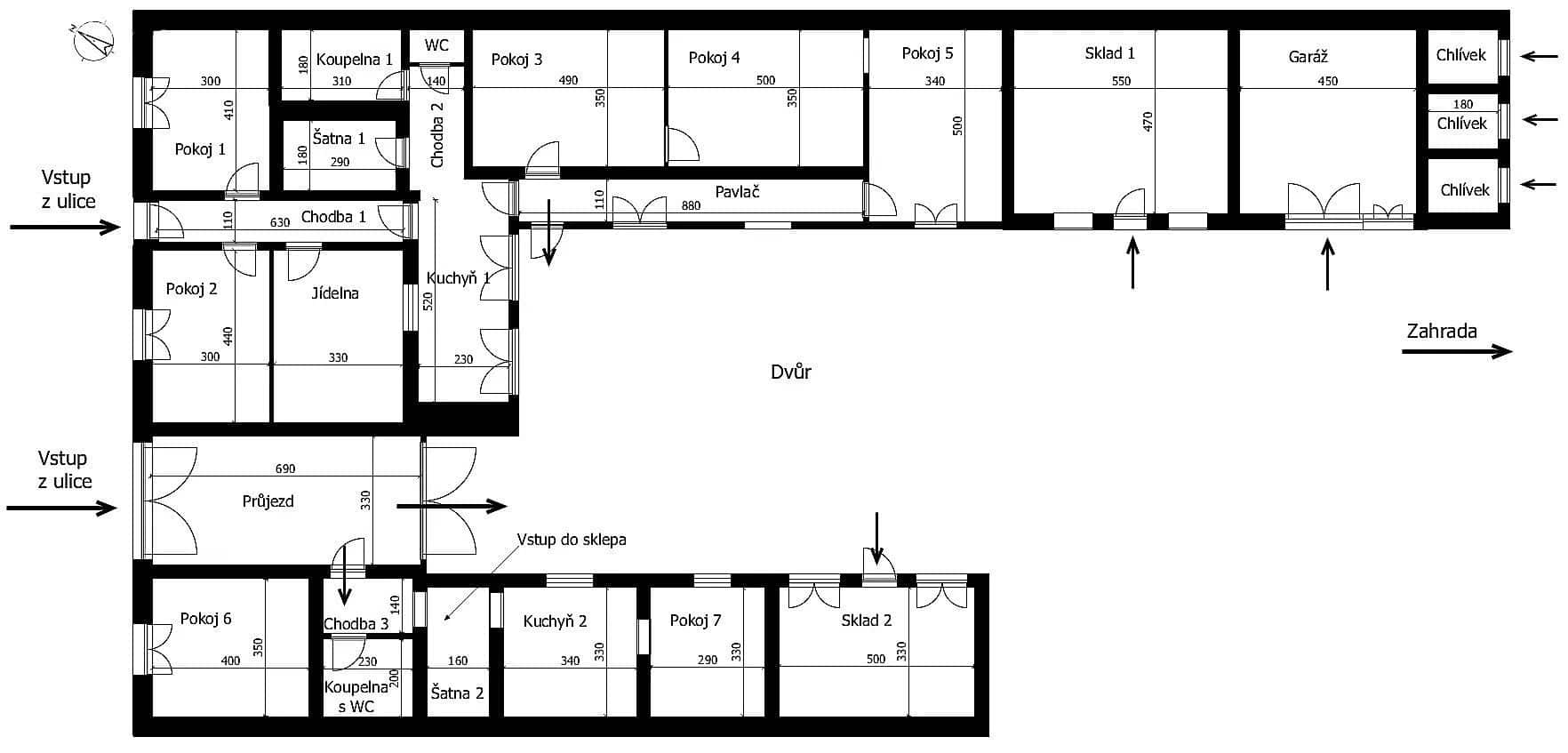
Jedná se o přízemní, řadový dům se zahradou, průjezdem do zahradního traktu. RD se dvěma oddělenými bytovými jednotkami o dispozici 6+1, 2+1. Tenhle prostorný dům , je správnou volbou pro velkou rodinu, k pronájmu, investice, podnikání. Celková plocha pozemku činí 1 239m2 , zastavěná plocha a nádvoří je 889m2, užitná plocha je cca 184m2, zahrada je 350m2.
Dům se nabízí k rekonstrukci na předělání dle vlastních představ, je v průměrném , technickém stavu. Nachází se v BI, zástavbě určený pro bydlení. Je výbornou investicí s možností realizace tří bytových jednotek, půdní vestavby. Je napojen na veškeré inženýrské sítě (voda, plyn, kanalizace, kopaná studna). Jsou zde udělané nové rozvody elektřiny v mědi, vody a plynu.
Dům je částečně podsklepený, s jedním nadzemním podlaží, má sedlovou střechu. Okna v domě jsou plastová a dřevěná. Podlahy jsou betonové, plovoucí, v kombinací dlažby. Energetická náročnost budovy nezjištěna, proto uvádíme třídu G. Domluvte si se mnou prohlídku, ráda Vám nemovitost předvedu a řeknu více informací.



























