Ve výhradním zastoupení majitele nabízíme k prodeji rodinný dům s dispozicí 4+kk na ul. Hliniště, Brno – Přízřenice.
Jedná se o samostatně stojící nízkoenergetickou dřevostavbu s celkovou plochou pozemku 347 m2, zastavěnou plochou 89 m2 a užitnou plochou domu 154 m2.
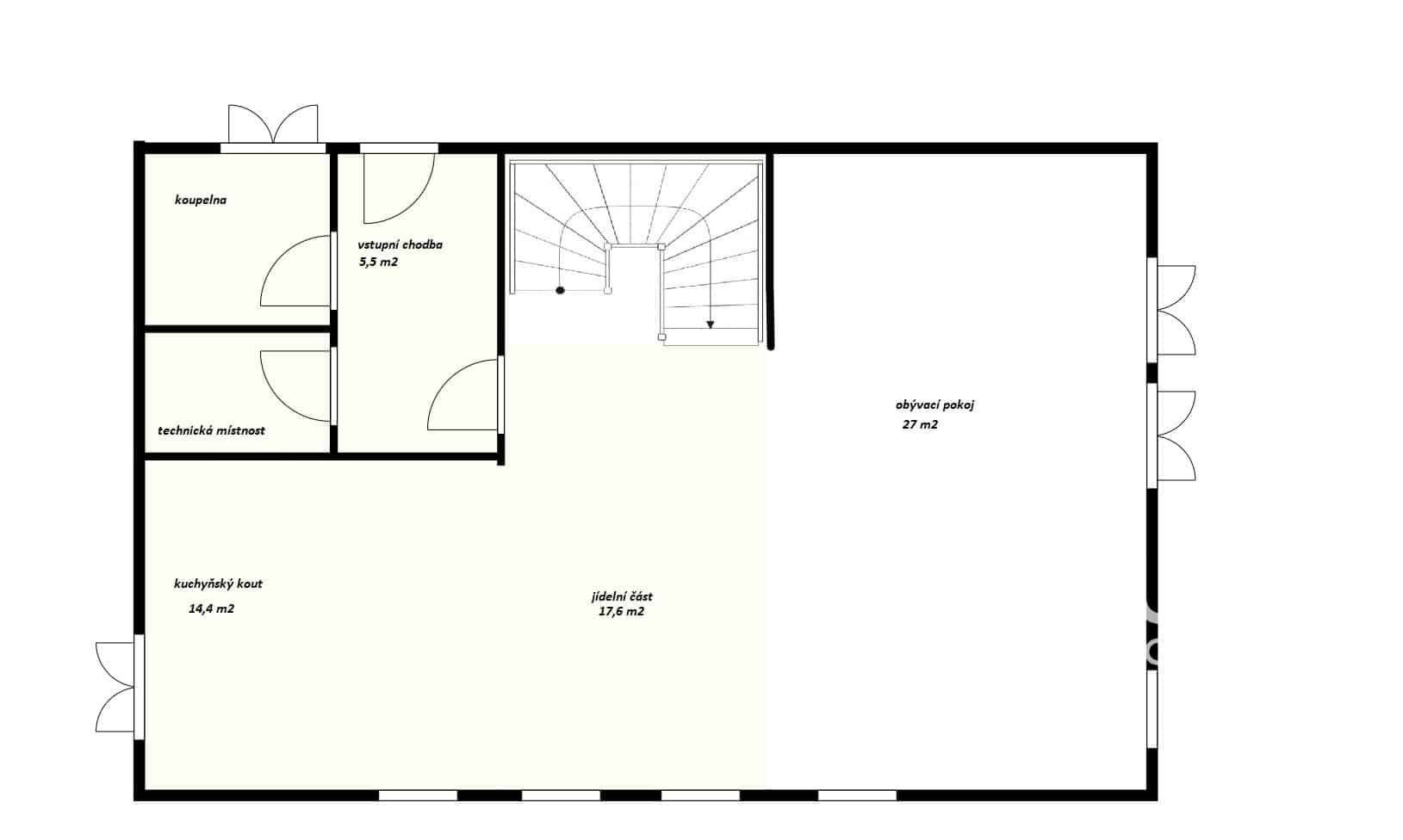
Dispozice domu 4+kk s parkovacím stáním na vlastním pozemku za elektrickou posuvnou bránou.
Celé přízemí domu je řešeno jako otevřená dispozice kuchyně 14.4m2 s jídelnou 17,6 m2 a navazujícím obývacím pokojem 27 m2.
Kuchyňská linka navržena bytovým architektem je na míru vč. veškerých spotřebičů a to myčky nádobí, lednice s mrazákem, trouby a varné desky s digestoří.
Obývací pokoj působí prostorným a vzdušným dojmem.
V rámci přízemí se dále nachází vstupní chodba 5,5 m2 s vestavěnými úložnými skříněmi, koupelna se sprchovacím koutem a toaletou, technická místnost, úložný prostor pod schodištěm.
Schodiště do patra domu je z masivu doplněno dřevěným zábradlím. V patře domu jsou tři samostatné ložnice ( 19 m2, 14 m2 a 18 m2 ) s vestavěnými úložnými skříněmi, balkon s posuvnými zatemňovacími panely, velkoryse prostorná koupelna 13,5 m2 s velkou rohovou vanou, sprchovým koutem, toaletou a okny do zahrady.
Dům je vytápěn elektrickým kotlem s radiátory v celém domě, akumulační nádrž na vodu s elektrickým ohřevem a současně napojen i na solární panely, které zajišťují převážně sezónní ohřev užitkové vody v domě.
Dům je v současné době napojen na vlastní čističku odpadních vod s retenční nádrží na pročištěnou vodu – do jednoho roku bude dům napojen na veřejnou kanalizaci.
Obytné místnosti domu jsou orientované na jižní stranu, relaxační část zahrady na východ. U domu se nachází zahradní úložný domek, pro děti v zahradě skákací trampolína, dětský dřevěný domeček s vlastním posezením. Trávu zavlažuje nově připojený samozavlažovací systém. Na zahradě je možnost využít také vrt spodní vody.
Výhodou domu je jeho umístění, ul. Hliniště je slepá klidná ulice, navazující na pole a zahrady , ideální pro vycházky s dětmi a domácími mazlíčky. Příjezdovou cestu využívají pouze majitelé nemovitostí.
Městská část Brno – Přízřenice se nachází pouze 10 min od centra Brna, velmi dobrou dostupnost na D1 a D2. Zastávka MHD a MŠ jsou vzdálené od domu cca 100 m. V obci je základní občanská vybavenost v blízkosti nákupní centrum Olympie, pro sportovní vyžití poslouží cyklostezka v sousední části Horní Heršpice je přírodní koupaliště a golfové hřiště.





























