Hledáte klidné bydlení pro svou velkou rodinu a přitom s dobrou dostupností do Brna?
V exkluzivním zastoupení majitele nabízíme k prodeji polořadový rodinný dům s garáží a velkou zahradou ve velmi žádané lokalitě v obci Pozořice ul. Šumická , okr. Brno-venkov.
Jedná se o velmi prostorný dvoupodlažní rodinný dům, který nabízí skvělou možnost bydlení především pro větší rodinu, nebo dvougenerační bydlení. Dům se zastavěnou plochou 444 m² a zahradou 2013 m² s uzavřeným dvorem kde nechybí altánek s posezením, prostorná dílna, udírna, sklep s vhodnými podmínkami pro dlouhodobé skladování ovoce a zeleniny.
Z uzavřeného dvora je vstup na mírně svažitou zatravněnou zahradu s ovocnými stromy.
Velkou předností domu je vjezd na pozemek z přední i zadní části pozemku.
Dům je napojen na elektřinu, plyn a kanalizaci, voda napojena na studnu, okna v domě jsou částečně plastová a dřevěná kastlová, ve spodní části domu se nachází vstupní chodba se schodištěm do patra které bylo dostavěno v roce 1978 .
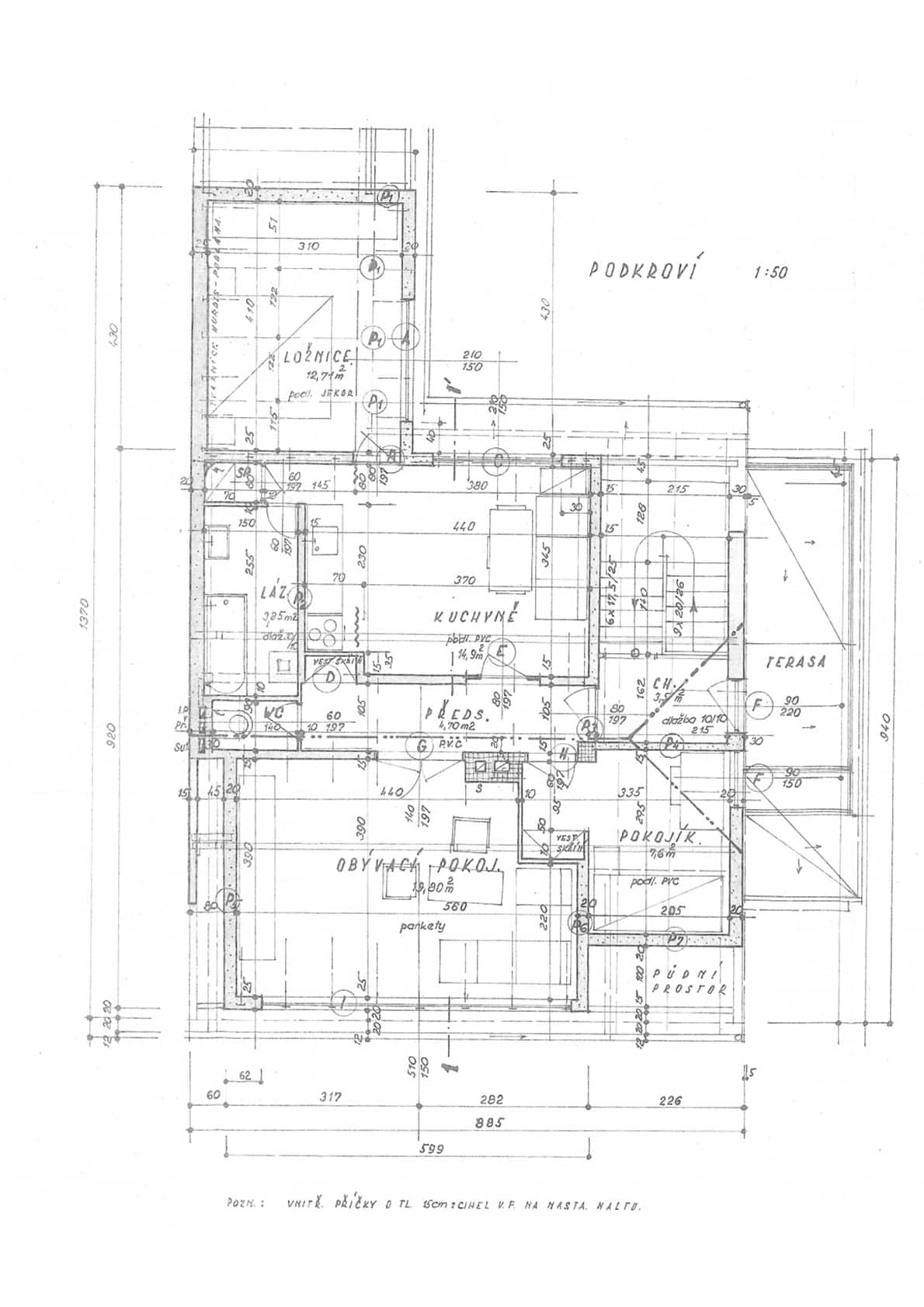
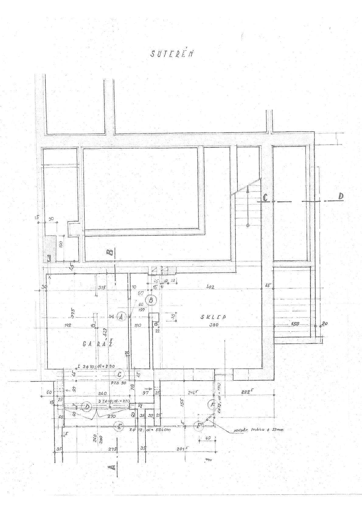
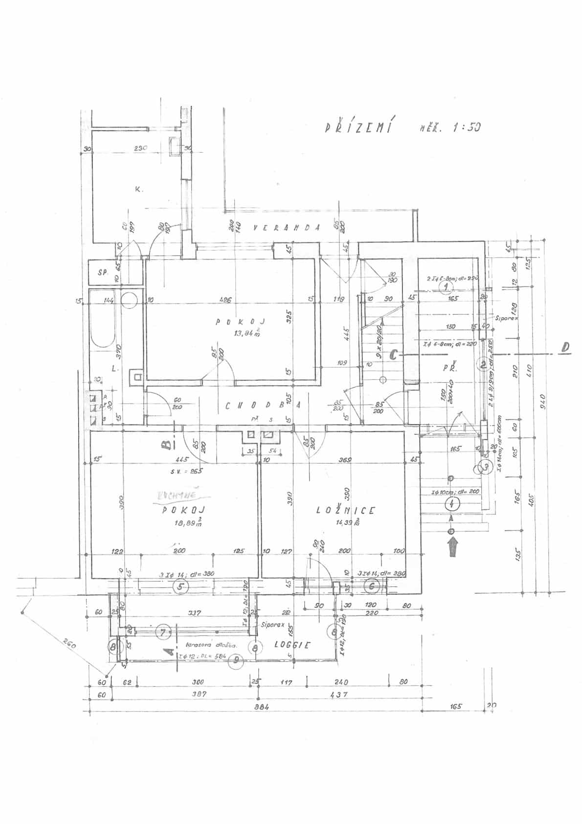
Dispozice domu , suterén – garáž, sklep.
Přízemí – vstup, chodba, schodiště, pokoj 13,84 m² , kuchyně 18,89 m², pokoj 14,39 m² se vstupem na lodžii, koupelna, veranda
1.NP – chodba, pokojík 7,6 m², balkon, obývací pokoj 19,80 m², kuchyně 14,9 m², koupelna 3,85 m², wc, ložnice 12,71m² .
Vytápění domu je zajištěno samostatným plynovým kotlem s rozvedeným ústředním topením.
Dům je vhodný k rekonstrukci.
Městys Pozořice má výbornou občanskou vybavenost: najdete zde školu, školku, lékaře i lékárnu, poštu, několik obchodů a restauračních zařízení, také nový multifunkční sportovní areál, kadeřnictví a další služby. K nájezdu na dálnici D1 Rohlenka se z Pozořic dostanete autem za pouhých 8 minut. Centrum Brna je autem dosažitelné do 25 minut, Slavkov u Brna do 15 minut a ve Vyškově budete do 25 minut. Dobré spojení s Brnem zajišťují také linkové autobusy.
Rychlý a kvalitní právní, hypoteční a poradní servis (PENB) je u nás samozřejmostí.
Financování možné hypotékou či úvěrem ze stavebního spoření, s jejich vyřízením Vám rádi pomůžeme.
S ohledem na legislativní požadavek jeho zveřejnění, musí být nemovitost označena v en. třídě “G”, což ovšem neznamená, že do této en. třídy opravdu patří.
Pokud vás tento prostorný rodinný dům zaujal, jako místo pro váš nový domov, neváhejte mne kontaktovat pro sjednání prohlídky ráda vás domem provedu.
















































