Potřebujete si odpočinout od ruchu města a načerpat pozitivní energii? Máme pro vás ideální řešení.
Ve výhradním zastoupení majitele si vám dovolujeme nabídnout k prodeji rodinný dům, chcete-li víkendovou chalupu, nacházející se v krásné přírodě Moravského krasu, v idylické vesničce Rozstání.
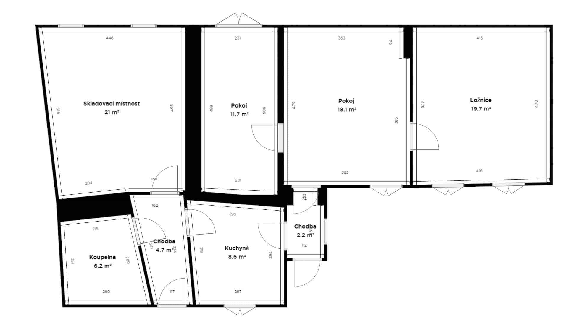
Dům a interiér domu:
Krom dispozice 3+1 je v domě k využití i technická místnost s možným vstupem do půdní vestavby. Pro lepší představu o dispozičním řešení jsme zařadili mezi fotografie v prezentaci půdorys i 3D vizualizaci. V rámci rekonstrukce půdní vestavby byly v roce 2019 ošetřeny krovy, položena nová střecha a instalovány nové střešní okna a okapy. Čelní strana domu do zahrady je zateplena. Díky tlouštce zdí o průměru 70cm je dům dokonale odhlučněn. V případě zájmu může být veškerý stylový nábytek viz. fotografie součástí kupní ceny. Celkovou pohodovou atmosféru domu podtrhuje krb, který slouží k vytápění v zimním období. Voda se ohřívá v bojleru, který je umístěn v koupelně a dále zde k ohřevu vody slouží i průtokový ohřívač v kuchyni. Je zde i menší sklípek vhodný např. jako vinotéka.
Zahrada a příslušenství:
Zahrada ideálního tvaru je orientovaná na slunnou jihozápadní stranu a zvláště od jara do podzimu, je díky zeleni po obvodu pozemku dostatek soukromí pro relax. Pro osvěžení v letním období je na zahradě instalován zapuštěný bazén o průměru 3m.
Technické parametry:
Celková plocha pozemku: 406m2
Zastavěná plocha vč. nádvoří: 253m2
Užitná plocha interiéru: 92m2
Do domu je zavedena elektřina a dálkový vodovod. Kanalizace je na hranici pozemku, ale v současnosti je využíván septik. Výhodou je určitě i vlastní funkční studna.
Okolí domu:
K domu vede zpevněná příjezdová cesta a u pozemku se dá bezproblémově parkovat. Velkou výhodou jsou určitě výborně zásobené stavebniny, které jsou od domu vzdálené pouhých cca. 80m a případně zakoupený stavební materiál sem pohodlně dopravíte. Pouhých 100m od domu je menší obchod se základním sortimentem vč.potravin a sympatická hospůdka.
V okolí je spoustu přírodních i turistických lákadel. Na své si zde přijdou milovníci sportu, i romanticky založení lidé, kteří dokážou ocenit přírodní krásy Moravského krasu. Jsou zde výborně značené turistické trasy a ráj pro cyklisty. Pouhé 4km vzdálený vysílač Kojál v nadmořské výšce 600m je zde nepřehlédnutelnou dominantou. V těsné blízkosti se nachází vyhlášené rekreační středisko Baldovec.
Na domě neváznou žádné právní závazky a může být uvolněn ihned. Celá nemovitost má výbornou atmosféru a je nutné ji vidět osobně. Prohlídky jsou možné po domluvě.























