Nabízíme k prodeji samostatně stojící vilu se 3 bytovými jednotkami v atraktivní lokalitě Brno Jundrov.
Vila se nachází ve svahu při ulici Veslařská v bývalé kolonii Linaheim. V domě jsou v přízemí 2 byty 1+kk, které jsou určeny k pronájmu, nad nimi je mezonetová jednotka 5+kk, kterou by bylo možno rozdělit na další 2 byty.
Zastavěná plocha je 108 m2, obytná plocha cca 210 m2. Dům je přístupný od hlavní silnice uzamykatelnou brankou, schodištěm a cestou cca 30m do svahu, což na druhou stranu zajišťuje naprosté soukromí a velmi pěkný výhled.
Garsonky mají cca 20m2, jsou vybaveny sprchovým koutem a malou kuchyní se spotřebiči. Nachází se zde také kotelna a technická místnost.
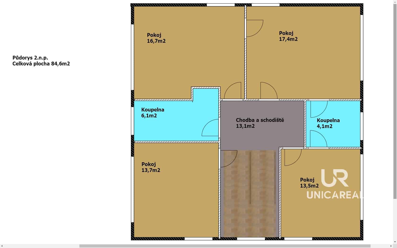
Mezonetová jednotka má dole velký otevřený prostor kuchyně a obývacího pokoje, samostatné WC, komoru a šatnu. Do mezonetu se vchází moderním, proskleným schodištěm.
Nahoře jsou 4 ložnice a 2 koupelny s vanou a WC. V celém dolním podlaží mezonetu je podlahové vytápění, nahoře pouze v koupelnách. Okna jsou 5 komorová s bezpečnostní folií, v celém domě jsou rozvody internetu + TV, kamerového systému a el. zabezpečení. Vytápění a ohřev vody zajišťuje kondenzační plynový kotel, veškeré IS. Dům je zateplen, kolaudován v r. 2018.
Po dohodě lze ponechat v domě i současné vybavení.
Doporučujeme prohlídku.
Průkaz energetické náročnosti je B.
























