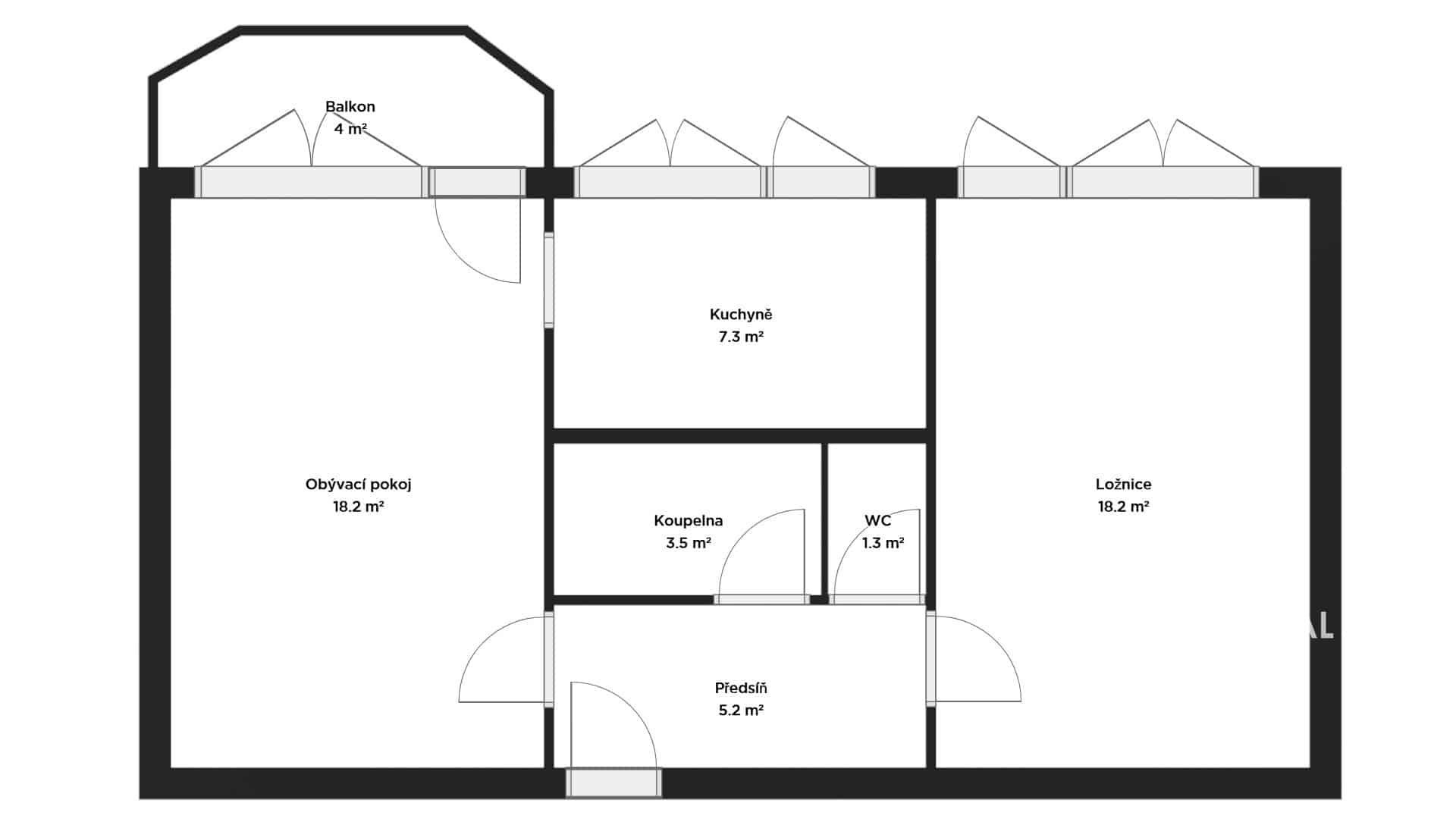
Se souhlasem majitele Vám nabízíme k pronájmu byt 2+1 na ulici Nezvalova, v lokalitě Brno-Lesná. Byt je situován v 8 N.P. s výtahem a má celkovou užitnou plochu 54m2 + lodžie s otevřeným výhledem na jihozápad o velikosti 4m2 + sklep 1,6m2. Jedná se o světlý a pozitivní byt s orientací na jihozápad.
Stav bytu:
Byt prošel kompletní a nákladnou rekonstrukcí vč. elektroinstalace.
Vybavení bytu:
kuchyňská linka, plynová varná deska, digestoř, vestavěná lednice a mraznička, vestavěná skříň v předsíni, příslušenství koupelny a WC viz. fotografie. Byt se tedy nabízí pouze částečně zařízený a vizualizace pokojů v prezentaci byla použita pouze pro lepí představu o možném rozložení nábytku a vlastním zařízením bytu.
Technické informace:
Byt je vytápěn dálkovým ustředním topením. V bytě je zaveden internet. V koupelně je nainstalovaná přípojka na pračku. Vaří se na plynovém sporáku. Výhodou bytu je jeho ideální dispozice. Dva stejně velké pokoje o velikosti 18,1m2 jsou samostatné a každý na opačné straně bytu. Pro lepší představu o dispozici je součástí prezentace půdorys a vizualizace.
Stav a poloha domu:
Panelový dům prošel kompletní revitalizací. Energetický štítek náročnosti nebyl dodán a proto je tedy v inzerci uvedena třída G. Dům Je situován ve výborné dostupnosti MHD do centra Brna. Jedná se o klidné místo obklopené parky, lesoparky a zelení. Lesná patří k oblíbeným brněnským lokalitám právě pro svou skvělou dostupnost do centra Brna, občanskou vybavenost a pěknou přírodou v okolí.
Energie a služby:
vyučtovatelné měsíční zálohy: vodné stočné ve výši 350,-Kč/1 osoba, topení 1.000,-Kč a dále ohřev vody 1.000,-Kč. Elektřina a plyn bude pronajímatelem přepsán na nájemce. Doporučená záloha na elektřinu a plyn je cca. 1.500,-Kč/ 2osoby. Zavedený internet není součástí těchto plateb. Pronajímatel požaduje vratnou jistotu ve výši 40.000,-Kč.
Celkový dojem:
Jedná se o sympatický, zrekonstruovaný byt na klidném místě, dobré adrese a s výbornou dostupnosti do centra Brna.
Dostupnost:
Byt je volný ihned a prohlídky, které vám určitě doporučujeme jsou možné po domluvě.

















