Scroll Top

Pronájem restaurace, 198 m2 – Brno – Židenice

Táborská
Židenice
Brno-město
Jihomoravský kraj
25 000 Kč za měsíc
Stav inzerátu č: 02597
Typ:
Komerční
Druh:
Restaurace
Užitná plocha:
198 m²
Stav:
Velmi dobrý
Stavba:
Cihlová
Číslo inzerátu:
02597

Telekomunikace

Popis

Se souhlasem majitele vám nabízíme k pronájmu zavedenou, zrekonstruovanou a kompletně vybavenou restauraci, situovanou na frekventovaném a komerčně zajímavém místě. Restaurace s výlohou a přímým vstupem z ulice se nachází v lokalitě Židenice, na ulici Táborská.

Dispozice restaurace:
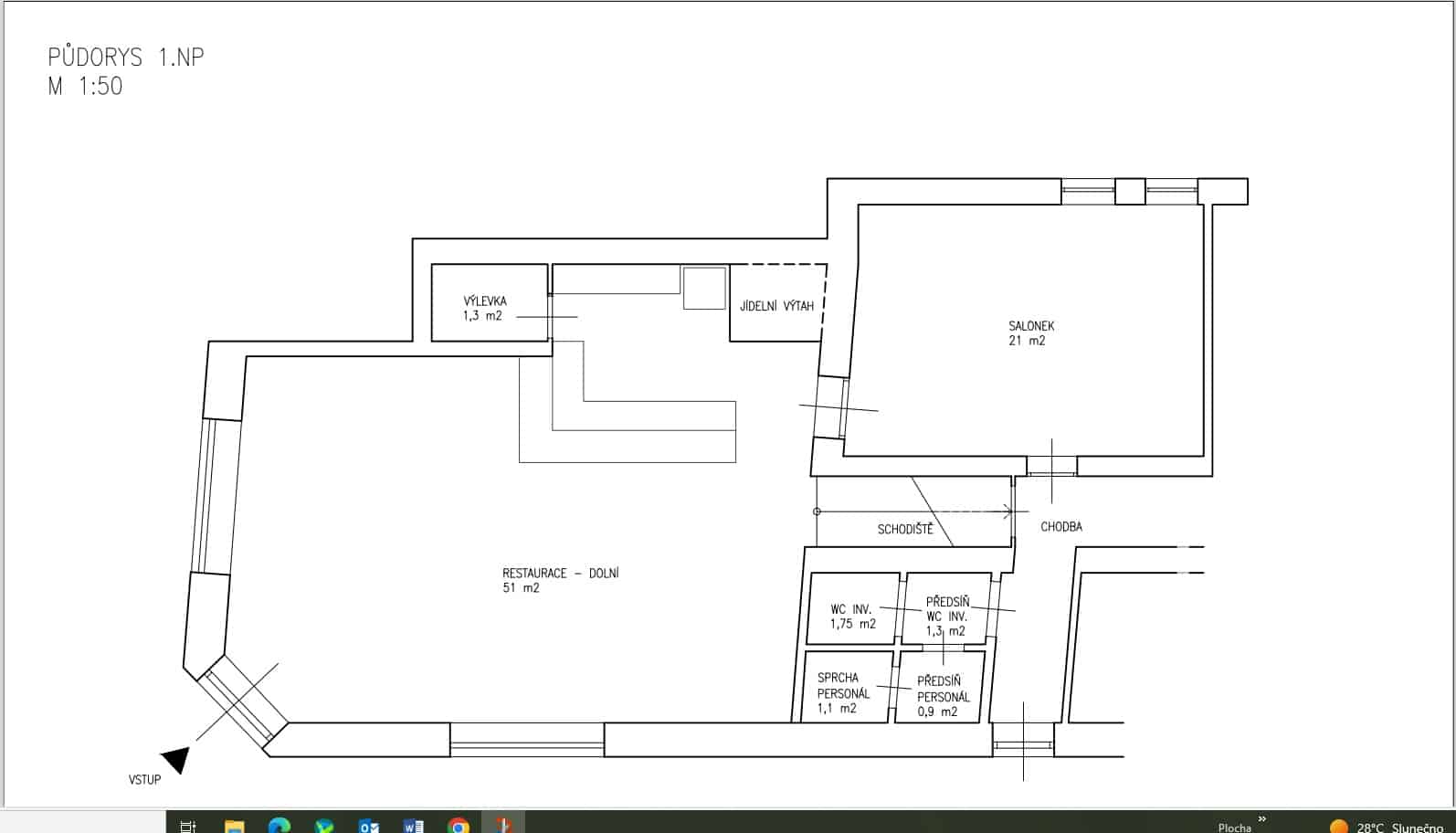
1 N.P.: hlavní restaurace s barem, salonek, tech. místnost, WC pro hosty, personal a invalidy, schodiště do 2 N.P.
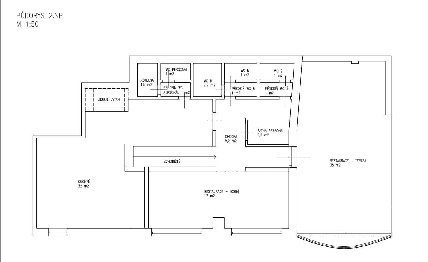
2 N.P. horní část restaurace, kuchyň, venkovní zastřešená terasa, technické zázemí a WC
1 P.P. sklep o velikosti 11,5m2

Pro lepší představu o dispozici jsou přiloženy k inzerci půdorysy restaurace.

V restauraci je instalována klimatizace a praktický nákladní výtah na obsluhu spodního patra.

Restaurace i kuchyň je plně vybavena viz. přiložené fotografie. Součástí odstupného není výčepní zařízení a el.šipky. Výši odstupného a nákladů na provoz vám sdělíme telefonicky, nebo do mailu.

Restaurace je vytápěna kombinovaným plynovým kotlem.

Restaurace bude uvolněna a předána na základě osobní domluvy. Součástí nájmu i odstupného budou po domluvě i dobře zavedené webové stránky a sociální sítě.

Další specifikace

En. náročnost: G – Mimořádně nehospodárná
Typ domu: Patrový
Počet podlaží:
2
Doprava: Autobus, MHD, Silnice
Elektřina: 230V
Voda: Dálkový vodovod
Plyn: Plynovod
Odpad: Veřejná kanalizace
Úžitná plocha:
198 m²

Mapa

Dotaz k nemovitosti

    Podobné nemovitosti
    Clear Filters

    Máte zájem o více informací o této nemovitosti?

    Pronájem restaurace, 198 m2 – Brno – Židenice

    Vyplňte jednoduchý formulář níže a my se vám co nejdříve ozveme s podrobnostmi. Rádi vám poskytneme odpovědi na vaše otázky, zašleme doplňující informace nebo domluvíme prohlídku.

      Kontaktní formulář

      Vyplňte jednoduchý formulář níže a my se vám co nejdříve ozveme. Rádi vám poskytneme odpovědi na vaše otázky, zašleme doplňující informace nebo domluvíme prohlídku.

        Kde nás najdete

        Parkování

        Zaparkovat můžete na ulici Hlinky. 

        Od 6:00 do 17:00Parkování je zdarma a není nutná registrace.

        Od 17:00 do 6:00 – První hodina parkování je zdarma, avšak je nutné se registrovat prostřednictvím mobilní aplikace ParkSimply nebo online parkovacího automatu. Každá další hodina stojí 20 Kč.

        GPS - Desetinný formát:

        Zeměpisná šířka: 49.1905°

        Zeměpisná délka: 16.5812°

        GPS - Stupně, minuty, sekundy (DMS):

        Zeměpisná šířka: 49°11'25.8" N

        Zeměpisná délka: 16°34'52.3" E