Scroll Top
  • Domů
  • Nemovitost
  • Prostorný slunný byt 3+1 v OV, 95 m2, Brno-Židenice, ulice Filipínského

Prostorný slunný byt 3+1 v OV, 95 m2, Brno-Židenice, ulice Filipínského

Filipínského
Židenice
Brno-město
Jihomoravský kraj
4 500 000 Kč
Stav inzerátu č: 01837
Typ:
Byty
Druh:
3+1
Užitná plocha:
95 m²
Stav:
Velmi dobrý
Stavba:
Cihlová
Číslo inzerátu:
01837

Sklep

Popis

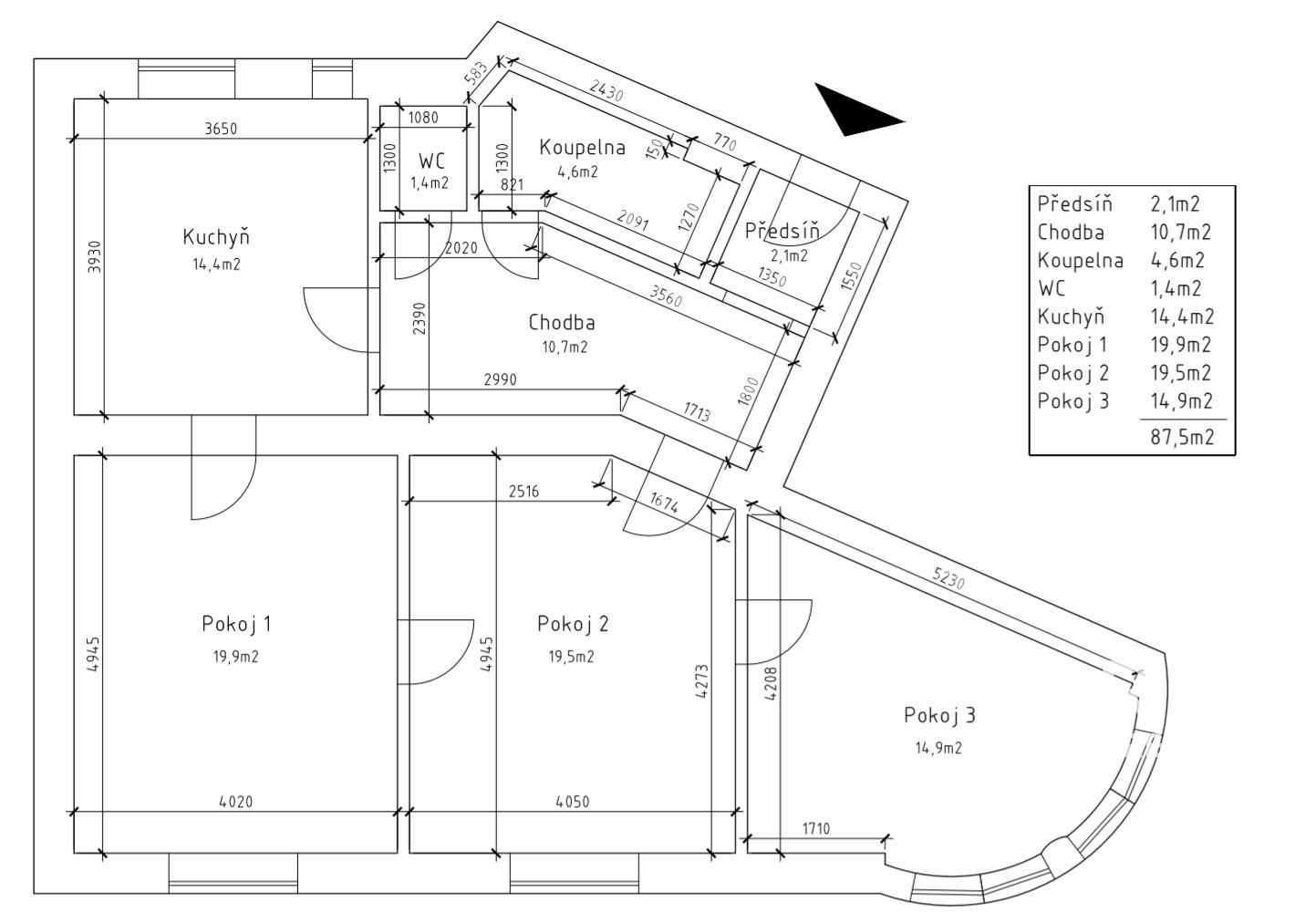
Naše společnost si dovoluje exkluzivně nabídnout prodej prostorného bytu 3+1 o velikosti 94,9 m2 v prvním patře cihlového bytového domu.

Byt je zrekonstruován (bez kuchyňské linky), koupelna je s vanou, WC samostatné, topení kotlem BAXI na ohřev vody i topení. Ve třech pokojích jsou zrenovované parkety, v kuchyni a předsíni je položeno kvalitní lino.

Orientace bytu – kuchyně je na jihovýchod, atypický pokoj na jihozápad, dva pokoje na severozápad. K bytu náleží prostorný sklep, podíl na půdě a na dvorku. Je možné přikoupit garáž v domě v hodnotě 350 000 Kč.

Při financování úvěrem rád pomůže náš finanční specialista.

Další specifikace

En. náročnost: G – Mimořádně nehospodárná
Poloha domu: V bloku
Počet podlaží:
3
Podlaží:
2. NP
Doprava: MHD
Podzemní podlaží:
1
Elektřina: 230V, 400V
Voda: Dálkový vodovod
Plyn: Plynovod
Odpad: Veřejná kanalizace
Úžitná plocha:
95 m²

Mapa

Dotaz k nemovitosti

    Podobné nemovitosti
    Clear Filters

    Máte zájem o více informací o této nemovitosti?

    Prostorný slunný byt 3+1 v OV, 95 m2, Brno-Židenice, ulice Filipínského

    Vyplňte jednoduchý formulář níže a my se vám co nejdříve ozveme s podrobnostmi. Rádi vám poskytneme odpovědi na vaše otázky, zašleme doplňující informace nebo domluvíme prohlídku.

      Kontaktní formulář

      Vyplňte jednoduchý formulář níže a my se vám co nejdříve ozveme. Rádi vám poskytneme odpovědi na vaše otázky, zašleme doplňující informace nebo domluvíme prohlídku.

        Kde nás najdete

        Parkování

        Zaparkovat můžete na ulici Hlinky. 

        Od 6:00 do 17:00Parkování je zdarma a není nutná registrace.

        Od 17:00 do 6:00 – První hodina parkování je zdarma, avšak je nutné se registrovat prostřednictvím mobilní aplikace ParkSimply nebo online parkovacího automatu. Každá další hodina stojí 20 Kč.

        GPS - Desetinný formát:

        Zeměpisná šířka: 49.1905°

        Zeměpisná délka: 16.5812°

        GPS - Stupně, minuty, sekundy (DMS):

        Zeměpisná šířka: 49°11'25.8" N

        Zeměpisná délka: 16°34'52.3" E